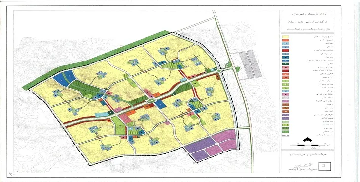
نقشه های شهرستان زابل